Located directly on the national border with France and Germany, the Rhine port serves as Switzerland’s gateway to the high seas and, by extension, to global trade. Extensive infrastructure for handling, storing, and transporting goods lends Basel the character of a true port city. A striking silhouette lines the harbour basin, shaped by a sequence of silo towers and warehouse buildings with windowless facades rising along the quay. Shipping containers, transferred between water and rail by large gantry cranes, are stacked in vibrant formations across interim storage areas. To ensure the port remains a competitive logistics hub and to safeguard the future operation of shipping activities, a new port headquarter is planned at the transitional zone between the two harbour basins.
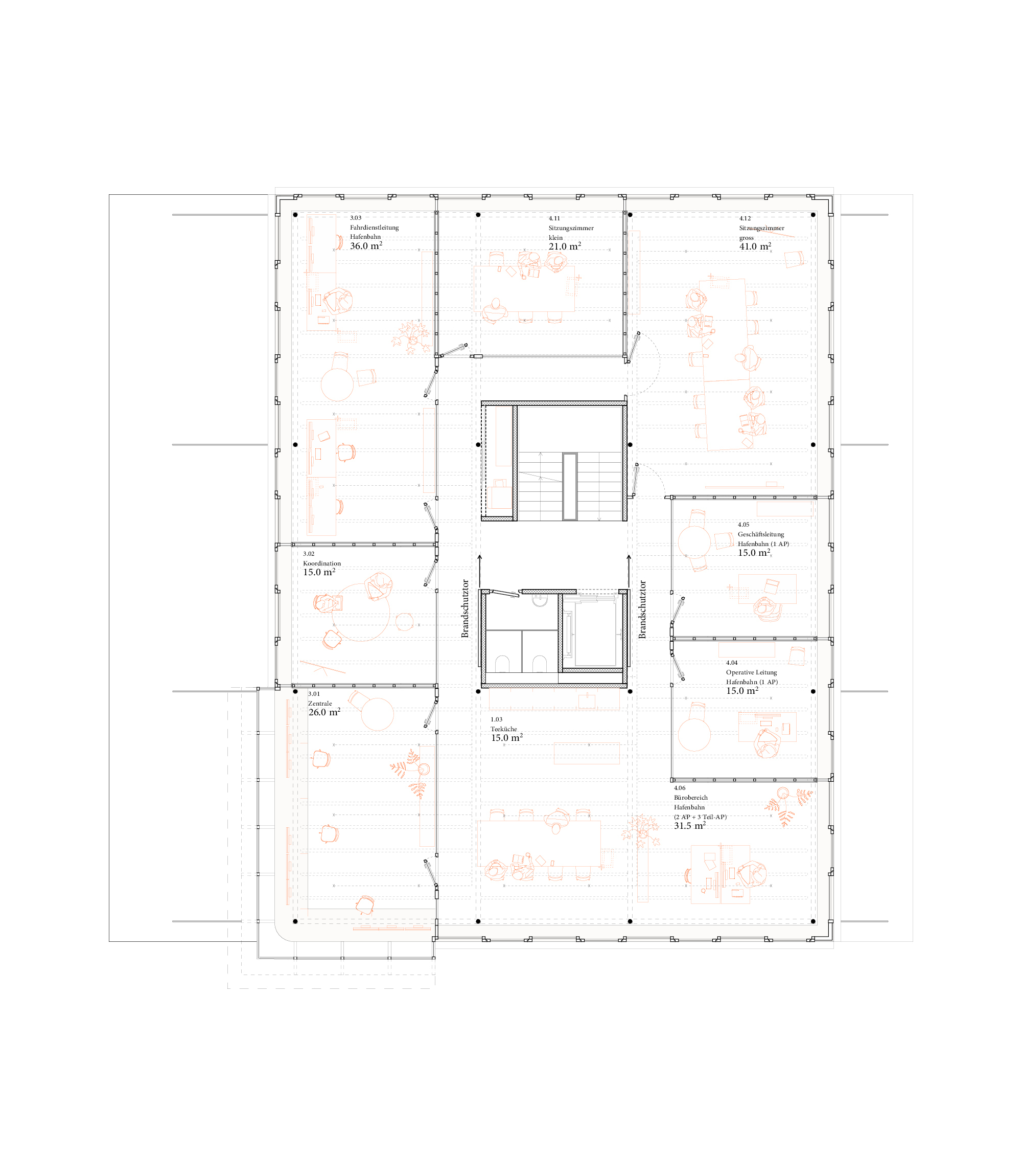
At a key location between the turning basin and the access channel to the second harbour basin, a simple cuboid volume is set directly on the waterfront. Its solitary placement extends the linear rhythm of infrastructural buildings along the quay. With its vertical form and open roof frame, it rises above the viaduct structure and marks the first architectural gesture beyond the national border—serving as a representative gateway to the harbour infrastructure. Thanks to its prominent location, the new harbour control centre overlooks both the turning basin and the historic harbour basins of the Swiss Rhine Ports. As a special-purpose structure, it becomes an integral part of the port’s operational infrastructure. In contrast to the closed, monolithic character of the neighbouring silo buildings, the facade of the new control centre opens up, creating visual transparency between its interior functions and the surrounding harbour space. Horizontal ribbon windows offer panoramic views, while their rhythmic arrangement creates a visual continuity across the storeys. This deliberate shift in scale allows the building to integrate seamlessly into the port’s composition of large-scale forms.
Additive elements, technical installations on the open roof structure, and the use of industrial materials in the facades reflect the architectural language of the surrounding utilitarian structures. Through a considered and expressive composition of these elements, the building enriches the sensory experience of the site and makes full use of its spatial potential. Its compact footprint allows for an efficient and flexible spatial layout. Freely positionable partition walls make the buidling adaptable to changing needs. Horizontal permeability across each floor, combined with communal areas in the rooftop garden, encourages interaction and exchange. Both spatial and structural expansion of the timber-steel hybrid structure is considered from the outset. Guided by the principle of circularity, each component is conceived with foresight and efficiency. An innovative sustainability concept aims to ensure carbon-free operation and minimise CO₂ emissions during construction.
- Location Basel, Switzerland
- Competition 2024, 1st Prize
- Client Schweizerische Rheinhäfen
- Architecture Buchner Bründler Architekten
- Building engineering Schnetzer Puskas Ingenieure AG
- Partners Daniel Buchner, Andreas Bründler
- Associate, planning and realization Nick Waldmeier
- Staff, competition Ludwig Hochleitner, Tim Stettler, Cosima Kammel, Flurina Kleiber
- Project lead, planning Carlos Unten Kanashiro
- Staff, planning Martin Düsedau, Charlotte Gückel
- Visualisations Buchner Bründler Architekten




































New Port Headquarters Basel
New administration building Kreuzboden, Liestal
Cooperative Building Volta Nord, Basel
Kunsthaus Baselland
Housing Development Rötiboden
Residential Development Eisenbahnweg
Service Building Bahnhofplatz
Kunstmuseum Olten
HIC ETH Zurich
Horburg residential development Basel
Fürigenareal
Stapferhaus Lenzburg
Missionsstrasse House
Allschwil House
Casa Mosogno
Cherry Storehouse Nuglar
Kirschgarten House
Accademia di Architettura
WDR-Filmhaus
Transitlager Münchenstein
Ornithological Centre Sempach
Kunsthaus Zürich
Syngenta Headquarters
University Guest House Hamburg
Cooperative Building Stadterle
Residential Building Amthausquai
Residential Housing Tièchestrasse
Münchenstein House
Greifensee House
Garden Tower
Hotel Nomad
Credit Suisse
Residential Housing Peninsula
Lörrach House
Chienbergreben House
Hertenstein House
Bläsiring House
Casa D’Estate
Youth Hostel St. Alban
Bernoulli House
Swiss Expo Pavilion
Volta Zentrum
Binningen House
Community Centre Seltisberg
Manager Pavilion Jinhua
Residential Housing Sevogelstrasse
Aesch House
Loft House Basel
Lupsingen House













